服務熱線
021-57488098
渠工品牌ZRHW系列電動小流量調節閥是針對某些特殊工況量身定制的電動調節閥,小流量電動調節閥是采用鍛造閥體鍛制而成,易做成高壓電動調節閥。閥芯尺寸可從加工差等0.15-15mm,可適應多種不同流量要求的工況。配由引進德國技術的PSL系列電子式電動執行器,電動執行機構內有伺服放大器,無需另配伺服放大器,有輸入控制信號(4~20mADC或1~5VDC)及單相電源即可控制運轉,實現對流量等參數的調節。微小流量電動調節閥具有體積小,重量輕、連線簡單、流量大、調節精度高等特點。ZRHW系列電動小流量調節閥主要應用于電力、石油、化工、冶金、環保、輕工、教學和科研設備等行業的工業過程自動控制系統中。
| 公稱通徑(DN) | G3/8"、1/2"、G3/4"、G1" | ||||||||||||
|---|---|---|---|---|---|---|---|---|---|---|---|---|---|
| 閥座直徑(dn) | 1.5 | 2 | 3 | 4 | 5 | 6 | 7 | 8 | 9 | 10 | 11 | 12 | 15 |
| 額定流量系數KV | 0.025 | 0.05 | 0.08 | 0.12 | 0.20 | 0.32 | 0.50 | 0.80 | 1.00 | 1.40 | 1.55 | 1.85 | 2.23 |
| 允許壓差(MPa) | ≤公稱壓力 | ||||||||||||
| 公稱壓力(MPa) | 1.6、2.5、4.0、6.4、10.0、16.0、25.0、32.0 | ||||||||||||
| 額定行程(mm) | 8 | 10 | 12 | ||||||||||
| 閥蓋形式 | 標準型(-17~+250℃)、高溫型(+250~+450℃)、低溫型(-40~-196℃)、波紋管密封型(-40~+350℃) | ||||||||||||
| 壓蓋形式 | 螺栓壓緊式 | ||||||||||||
| 密封填料 | V型聚四氟乙烯填料、V型柔性石墨填料 | ||||||||||||
| 閥芯形式 | 單座市 | ||||||||||||
| 流量特性 | 等百分比、直線性 | ||||||||||||
| 配置執行器類別 | PSL系列、3810L系列等電動執行器(客戶指定品牌亦可) | ||||||||||||
| 執行器參數 | 電源電壓:220V、輸入信號:4-20mA或1-5V·DC、輸出信號:4-20mA·DC | ||||||||||||
| 防護等級:相當IP65、隔爆標志:ExdⅡBT4(ExdⅡBT6特殊定制)、手操功能:手柄 | |||||||||||||
| 環境溫度:-25~+70℃、環境濕度:≤95% | |||||||||||||
| 閥體 | WCB | 304 | 316 | 316L |
|---|---|---|---|---|
| 墊片 | PTFE\石墨墊片 | PTFE\石墨墊片 | PTFE\石墨墊片 | PTFE\石墨墊片 |
| 閥座 | 304 | 304 | 316 | 316L |
| 閥芯 | 304 | 304 | 316 | 316L |
| 閥蓋 | WCB | 304 | 316 | 316L |
| 閥桿 | 304 | 304 | 316 | 316L |
| 填料 | PTFE/石墨 | PTFE/石墨 | PTFE/石墨 | PTFE/石墨 |
| 填料壓蓋 | WCB | 304 | 316 | 316L |
| 項目 | 指標值 | ||
|---|---|---|---|
| 基本誤差% | 配3810L±2.5; 配PSL±1.0 | ||
| 回差% | 配381L ±2.0; 配PSL±1.0 | ||
| 死區% | 1.0 | ||
| 始終點偏差% | 電開 | 始點±2.5 | 終點±2.5 |
| 始點±2.5 | 終點±2.5 | ||
| 電關 | 始點 | ±2.5 | |
| 終點 | ±2.5 | ||
| 額定行程偏差% | ≤2.5 | ||
| 泄露量L/h | 0.01%×閥額定容量 | ||
| 可調范圍R | 30:1 | ||
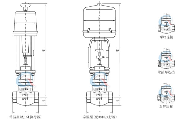
![]() |
|---|
| 電動小流量調節閥外形圖 |
| 公稱通徑DN | 閥座直徑dn | L | H | H1 | H2 | D |
|---|---|---|---|---|---|---|
| G3/8“ | 1.5~15 | 95 | 30 | 130 | 465 | 177 |
| G1/2“ | 1.5~15 | 95 | 30 | 130 | 465 | 177 |
| G3/4“ | 1.5~15 | 110 | 30 | 130 | 465 | 177 |
| G1“ | 1.5~15 | 110 | 30 | 130 | 465 | 177 |

溫馨提示:
本文中的文字、數據、圖片僅作為參考。需要了解更多ZRHW電動小流量調節閥的使用性能、外形結構、安裝尺寸參數、價格,索取
ZRHW電動小流量調節閥說明書及產品選型樣本,請聯系我們。